Revision 03: updated on October 10, 2017
Revision 02: updated on September 22, 2017
This is our 4th renovation, followed by minor renovation & touch up at the existing HDB unit before pushing it to the rental market (the 5th renovation) and the 6th renovation in November 2017 (TOP expected to be the end of October 2017), Citrine service apartment at Sunway Iskandar. The first one was 5-room flat at Toh Guan, followed by 4-room flat at Toh Guan, then Nusaheight service apartment at Gelang Patah, Nusajaya. It is a stone throw away from the future bullet train station at Nusajaya. So, armed with 3 renovation experiences, I know exactly what we want and the price too. We set a target of S$10,000 for renovation and S$20,000 for furniture furnishings for Waterfront@Faber unit. It will be our self-stay unit and probably our future retirement home, why not? Here are the updates, let’s go!
July 12: Key collection
July 15: Defect list submitted.
August 7: Defect rectification completed and singed off.
August 19: Renovation ID finalized with Weiken, cheque issued to ID to start work immediately after management approval.
August 24: Master bedroom wall hacking completed.
August 25: 75% lightings installation completed.
August 28: All L-box structures completed.
August 29: Hacked wall was made good.
(1) TV feature wall/cabinets: (S$4,025)
BOSCH Kitchen appliances
The kitchen appliances supplied FREE by the developer are worth S$8,742 at the current market right now.
Revision 02: updated on September 22, 2017
This is our 4th renovation, followed by minor renovation & touch up at the existing HDB unit before pushing it to the rental market (the 5th renovation) and the 6th renovation in November 2017 (TOP expected to be the end of October 2017), Citrine service apartment at Sunway Iskandar. The first one was 5-room flat at Toh Guan, followed by 4-room flat at Toh Guan, then Nusaheight service apartment at Gelang Patah, Nusajaya. It is a stone throw away from the future bullet train station at Nusajaya. So, armed with 3 renovation experiences, I know exactly what we want and the price too. We set a target of S$10,000 for renovation and S$20,000 for furniture furnishings for Waterfront@Faber unit. It will be our self-stay unit and probably our future retirement home, why not? Here are the updates, let’s go!
I changed my ID last minute due to the huge price variance of up
to S$8,000 and that caused me a delay of 2 weeks.
September 4: Whole house painting completed.
September 5: Hacked floor was made good.
September 7: Clear all floor protection.
September 8: Whole unit cleaning completed.
September 12: Carpentry installation completed.
September 15: Paints touch up done, renovation completed.
The renovation took me 4 weeks to complete.
September 18: All bedrooms oak flooring were matt varnished by the developer's contractor.
September 30: LG Smart TV, sound bar delivered. Store room racks delivered.
October 3: Simmons mattress/ bedframe delivered. Blinds installation completed.
October 7: Commune sofa delivered. Dining table/chairs from Mondi delivered.
October 14: Mover starts to move house from Toh Guan at 8.30 A.M.
October 14, 2017 is the date we move to Waterfront @ Faber. :)
The renovation took me 4 weeks to complete.
September 18: All bedrooms oak flooring were matt varnished by the developer's contractor.
September 30: LG Smart TV, sound bar delivered. Store room racks delivered.
October 3: Simmons mattress/ bedframe delivered. Blinds installation completed.
October 7: Commune sofa delivered. Dining table/chairs from Mondi delivered.
October 14: Mover starts to move house from Toh Guan at 8.30 A.M.
October 14, 2017 is the date we move to Waterfront @ Faber. :)
(1) TV feature wall/cabinets: (S$4,025)
Carpentry Works
(Design and fabricate of full height TV storage
cabinet with solid compressed plywood, selected laminates, inner colored PVC
and ABS trimming doors. Cabinet is installed with Blum’s anti-slam hinges.)
The biggest item of the renovation got to be
built-in-furniture, which is our full height of 2.85 meter, length of 3.3 meter of TV feature wall with a lot of cabinets. We finally engaged Weiken ID at
Tradehub 21 for our renovation. Their quoted price is subjected for 7% GST but
they are giving out 7% discount at the final price too. It means the 7% GST is
waived and you have a minor discount of 0.49% to be exact. So, all the prices
listed in this blog (Weiken ID) are the prices BEFORE the 7% discount. In this
case, the TV cabinets is S$4,005.28 NETT instead of S$4,025.
I sent this exact picture for 7 quotations at various ID firm and carpentry shops.
Filip Janssens designs
Filip Janssens's Asper project in year 2011
My renovation cost (Weiken) : S$9,229.55
We bumped into the above design from Google search, with keywords, "huge TV cabinets design" and we love the full
height massive cabinet storage designs with style. Then, a carpenter ID told us
it was actually a Belgium furniture designer masterpiece, called Filip Janssens
( http://www.filipjanssens.be/ ). No
wonder, it looks gorgeous to me. I used the same photo for 7
quotations (4 ID firms and 3 carpentry shops) and I have good price benchmark. There are 4 quotations about the same range and I picked Weiken, of course,
why? It is the largest ID firm in Singapore and I saw the show unit at Tradehub
21 and I want my TV cabinets to be the same quality as show unit, so it is a very
good benchmark. It is no brainer for me to quickly pick Weiken ID. I have no
idea why their price could be so competitive. I have 7 quoted prices range from
S$3,900 to S$7,430. Many (included me) have a mindset that their price must be
premium as they engaged celebrities for advertisement, hence, a lot of
marketing costs spent and the cost might be transferred to the customers. I think
the price quoted is fantastic, same for the rest of the items too!
We picked “NOT pure white” laminate as it will turn
yellowish easily in the future and the light color will give you a sense of
bigger space. Dark colors on the cabinet will give you a beam (column) structure in the
living hall especially you have a massive length/full height TV cabinets, you also need to make sure the width is not too large. The
final finished product is exactly what we have expected. I give 10 out of 10. I got nothing
to complain.
Price benchmarking
This is the final drawing we sent to ID for "execution".
The final finished product. :)
The view while you sit at the center of the sofa.
Plenty of storage space.
Panorama shot. :)
(2)
L-box for cove lightings
Plastering & ceiling works
(a)
Design, supply labor and materials to construct
cove light L-box in living area
(Length 3500 x Width 3300 mm): (S$550)
(b)
Design, supply labor and materials to construct
cove light L-box in dining area
(Length 2000 x Width 3000 mm): (S$500)
(c)
Design, supply labor and materials to construct
cove light L-box in master bedroom area
(Length 2600 mm): (S$250)
Cove lighting is a MUST in my design. I love the lighting ambience with downlights, cove
lighting or both if I want the brightest atmosphere. That’s just me, love the cove
lighting effects.
So, I pay around S$1,300 for cove lightings.
So, I pay around S$1,300 for cove lightings.
T shape cove lightings
Dining hall and living hall L-box
Master bedroom L-box
Dining hall and living hall cove lightings
Master bedroom cove lightings
Simply love cove lightings effect
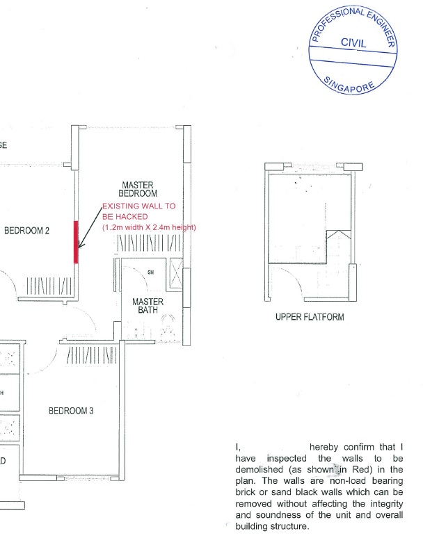
(3)
Master bedroom wall hacking
Hacking & Dismantle works
(a)
Hack new entrance opening between master bedroom
and bedroom 2 (length 1200 x height 2400 mm): ($300)
We want to have a bigger master bedroom, hence, we knock off
a new entrance opening between master bedroom and bedroom 2, the length is only
1.2 meter as there are some water piping below the air con at the master
bedroom wall, that’s the biggest we can go but it still serve our purpose. I
believe some of the miscellaneous works come with this wall hacking, for example,
clearing the debris, and laying cardboard for protection, general cleaning,
make good the existing floor and wall.
Item 5 & 6 are shared cost with other works, so it is about right to say it costs me S$1,500 to enlarge the master bedroom. Good deal.
Item 5 & 6 are shared cost with other works, so it is about right to say it costs me S$1,500 to enlarge the master bedroom. Good deal.
Hacking completed.
Make-good completed.
PE endorsement
The wall hacking required PE endorsement. We got our colleague to do it for us FREE, else it will cost S$750.
(4) Miscellaneous works
(a)
Supply labor and tools to carry out haulage and
debris disposal works. S$550
(b)
Supply and laying of corrugated cardboard for
protection.S$300
(c)
Supply labor, tools and materials to carry out
general cleaning upon handing over. $350
(d)
Paint all internal walls and ceiling with Nippon
Emulsion Paint (we used 6 colors at the end) $1,950
(e)
Supply labor, tools refurbish of existing
flooring affected by hacked wall between master bedroom and bedroom 2. (Oak
flooring provided by developer). S$250
(f)
To supply labor and material to make-good/patch
up to hacked wall area between master bedroom and bedroom 2. S$250.
All right, this is the area I can actually save few hundred dollars but I didn't. That is to paint the whole unit. I shall be able to engage Nippon paint directly to get the job done. Oh well, the coordination works had reached my maximum capacity. Too bad!
Do I hit the target? Not too bad.
Renovation cost:
S$9,229.55 + electrical wirings cost S$1,400 = S$10,629.55
Furnishing cost: S$17,716.33
I have spent a grand total of S$28,345.88, still well below my target of S$30,000. Buy more!
My lightings cost is S$690, all from Philips.
My lights distribution is shown below.
Trunkable Linear LED for all cove lightings
Down lights for all the bedrooms, toilets, dining, living, kitchen
Ceiling lights for loft , store room and balcony (IP65)
Details of electrical wirings cost : S$1,400
I think I know why he charged me differently for creating one 13A x 2 power point.
Create one at the DB switch box is the easiest task, so, that's S$45.
Create one at the new TV living hall is tougher , so, that's S$65.
Create one at the new TV living hall is tougher , so, that's S$65.
Create one at the kitchen cabinet wall is the difficult one, he has to hack a lot of wall and that's S$85.
In average, I pay S$65 for 2 power points. Cheap!
Window Blinds
As for the windows blinds, we get the Unislat for living hall, Premium Combi (full blackout) for master bedroom and the rest of the bedrooms, Combi Aurora. All are Korea blinds.
You may contact Blinds Guru at 8777 5717.
You may contact Blinds Guru at 8777 5717.
Windows blinds full cost: S$3,523
Unislat (opened)
Unislat (closed)
Unislat. Net pattern (gray)
Unislat. Line pattern (Ivory)
Master bedroom : Premium Combi (full blackout)
Master bedroom : Premium Combi (full blackout)
Loft room: Combi Aurora
Loft room: Combi Aurora
Guestroom 1: Combi Aurora
Guestroom 2: Combi Aurora
Combi Aurora versus full blackout
Song-Cho stainless steel items are LIFETIME warranty.
Solid quality.
One time installation fee of S$53.50 is a GREAT bargain.
We spent S$1,154.41 for Song-Cho products.
Standalone dish rack
LG Smart TV
I bought a LG UJ750T – 55” UHD TV 4K on July 21 with a price
of S$2,299. It comes with:
FREE LG 32” Smart TV worth S$599 (can do trade in with them
for S$300)
FREE Swivel bracket worth S$300.
I have booked my delivery date on September 30.
On September 21, I chanced to know they have even better
promotion and I decided to upgrade my TV “FREE”. Hence, I am now getting a LG SJ850T.
It is actually a SUPER Ultra HD TV 4K.
The key differences are:
(1)
Refresh rate is double at 100 HZ
(2)
Super Ultra HD versus Ultra HD
(3)
Advanced local dimming versus local dimming
(4)
2.2 channel 40 W speaker system versus 2.0
channel 20W speaker system
(5)
SUHD has additional one USB 3.0 port
(6)
SUHD design has sleeker stand and the TV screen
has no silver plate border.
Both resolution is the same at 3,840 x 2,160, 55” size.
The price is S$2,599. It seems like the price is $300 more
but it comes with:
FREE LG 43” Smart TV worth S$1,199 (can do trade in with
them for S$500, so, the price difference drop to S$100)
FREE Swivel bracket worth S$300
FREE LG Blue-Ray Player (BP450) worth S$139
FREE Digital Antenna (Funke 2.0) worth S$49
With this TV purchase, you can get buy the S$899 LG SJ8 Wi-Fi
speaker bar at special bundle price of S$499. With this, you also get:
FREE LG Music Flow Speaker H7 (NP8740) worth S$599
Pretty good deal, isn’t it?
A quick check of the market selling price of the FREE items:
(1)
NP8740 wireless speaker selling at S$546
(2)
SJ8 Wi-fi sound bar selling at S$599
(3)
Blu-Ray disc player BP450 selling at S$87
I sold the 43" smart TV back to Best agent at S$500 and NP8740 wireless speaker at S$400.
So effectively, my 55" TV is S$2,099 nett and SJ9 sound bar is S$99 nett.
I sold the 43" smart TV back to Best agent at S$500 and NP8740 wireless speaker at S$400.
So effectively, my 55" TV is S$2,099 nett and SJ9 sound bar is S$99 nett.
All items fit perfectly within the allocated space.
Store room rack
I got the L-shape store room racks from SG Shelving at S$399.
You may contact Vincent at 9826 2379.
Grille Gate
I installed a grille gate at the main door entrance. It costs S$650.
Why? It is definitely not for the security reason. I love to open the main door to let the wind flows through the whole house. I cannot imagine I can just open the main door wide without a grille gate. :)
You may contact Lynda at 9007 7274.
Commune Sofa
I love almost every items at Commune. In particularly, this
Commune Windsor L shape sofa. It is comfortable and you enjoy 10% discount
during the Great Singapore Sale only and it is now back to the original price. As our
TV cabinet is full length of 2.85 meter, I hope this 2.60 meter length fabric
sofa will not look too big in the living hall, we shall see! If you love wooden
furniture, Commune is the best shop. I got the L-shape store room racks from SG Shelving at S$399.
You may contact Vincent at 9826 2379.
Empty HS space
L-shape storage racks
Grille Gate
I installed a grille gate at the main door entrance. It costs S$650.
Why? It is definitely not for the security reason. I love to open the main door to let the wind flows through the whole house. I cannot imagine I can just open the main door wide without a grille gate. :)
You may contact Lynda at 9007 7274.
Brown color grille gate
Commune Sofa
Designer furniture with reasonable price.
All furniture delivered on Oct 7, 2017.
The L-shape sofa size is still OK.
Dining table size is just all right too.
My beloved sofa. :)
The kitchen appliances supplied FREE by the developer are worth S$8,742 at the current market right now.
TDK DC ceiling fan
I bought a TDK DC motor ceiling fan (short rod) for living hall at Tampoi Lighting Centre, Johor. It is selling at RM 499 = S$159 only and I got additional fan hook at RM 3.
It is good to mention the installation cost for one fan is S$80, done by my electrician. The cost is 50% of the fan cost!
With the LED lights, it is selling RM 699 in Malaysia. Singapore is selling S$648, it costs RM 1,329 more !! Isn't that crazy?
Address:
No.2, 4 & 6 Jalan Titiwangsa 3/1,
Taman Tampoi Indah,
81200 Johor Bahru, Johor.
Tel: 607-2418999, 2418990, 2418963
Email: tampoi@hotmail.com
K14ZW model
K14ZW specification (the only model comes with 4 blades)
Finn Avenue Home
We bought 4 mirrors product from Finn Avenue Home. They are all handmade.
You may contact Grace at 6753 3466.
Wall Mirror at the dining hall
Mirror at the master bedroom hallway
2 meter x 1 meter Hermes Wall Mirror , weighted 54 KG.
Side profile
My best model
Simple Perfection Mirror (double) with Fayette Chesterfield
2-Seater Loveseat Sofa- Sky Blue
Harriette Mirrored Chest of Drawers
One more item to be delivered , Cristal Mirrored Console Table
Find Grace!
Additional 5% discount if order is above S$5,000.
10% discount if the order is above S$10,000.
To be continued....














































